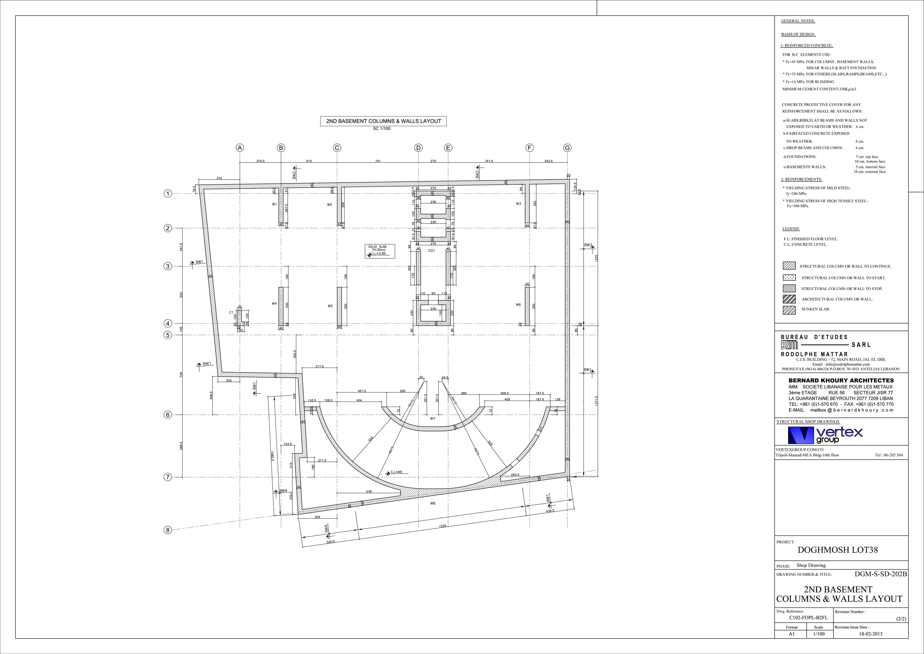
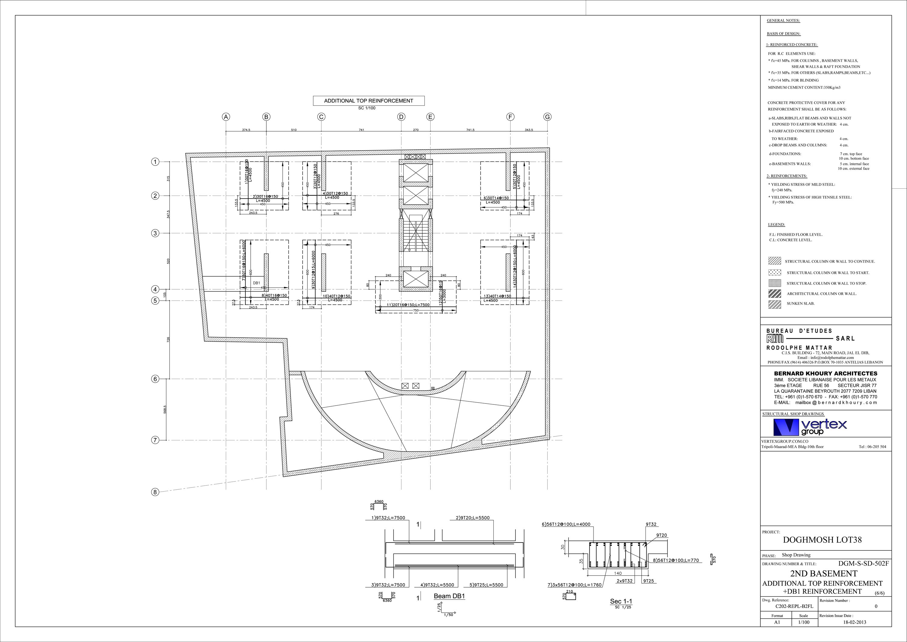
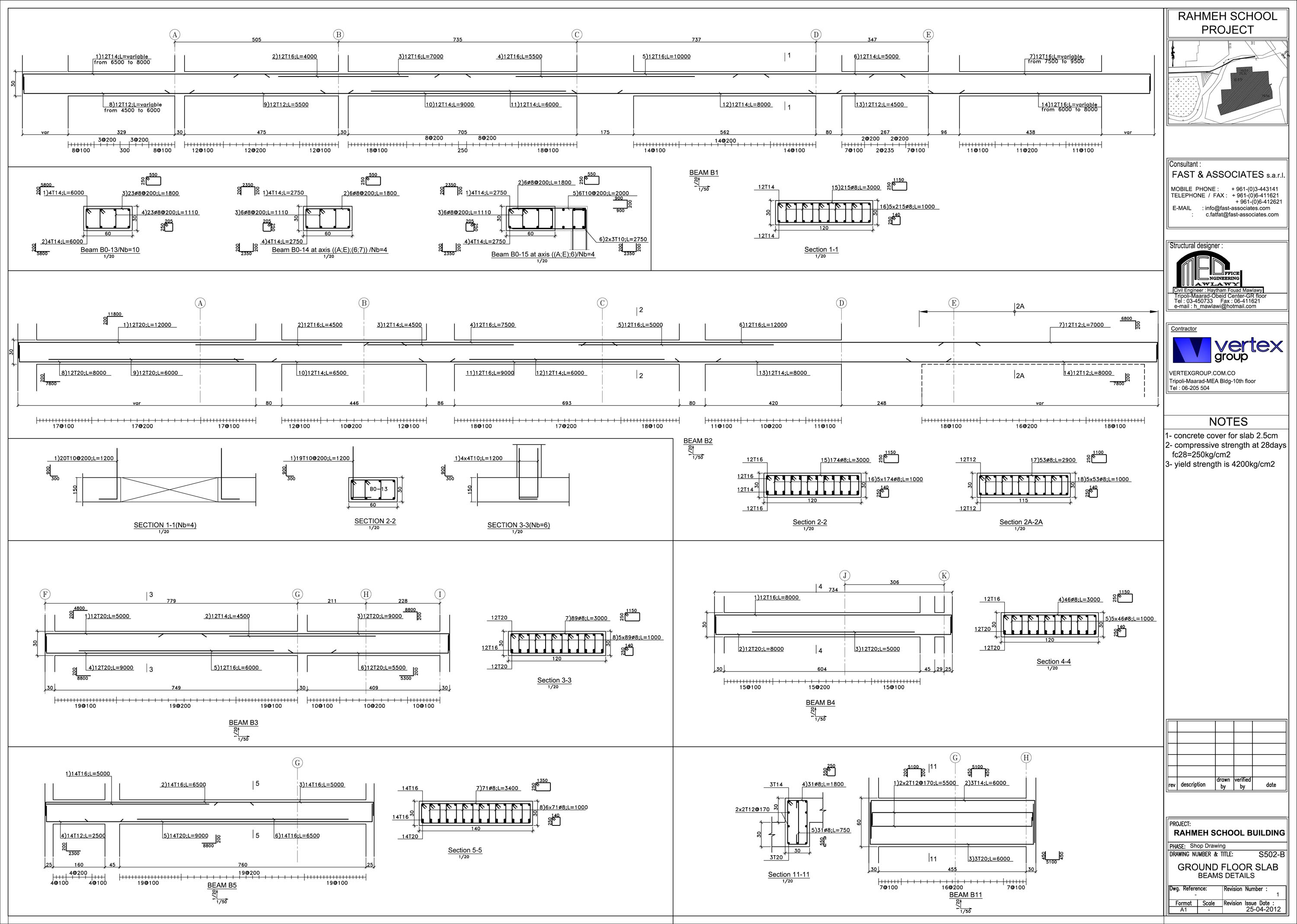
STRUCTURAL SHOP DRAWING

STRUCTURAL SHOP DRAWING is the process of translating design / contract drawings to detailed shop drawings. We have structural detailing professionals with many years of experience in structural steel detailing projects. Services we offer are flexible and cost effective. We offer solutions in engineering drafting, ensuring a high level of quality and delivering on time at the same time. Vertex Group services offers excellent detailing, design, and structural drawings through CAD programs. Our structural drafting services include:Structural steel CAD drawings, RCC beam CAD drawings, Structural steel drafting, Construction CAD drawings, Rebar detailing, Detail shop drawings, Bar bending schedules, Quantities take off, Value engineering and As-Built Drawings...etc
PROCESS
-
Provide us with your project details (CAD plan, PDF file or paper outline).
-
Present us with the services you are interested in (Design, Shop drawings, 3d rendering
-
Upon signing of agreement, we will begin creating your project. Within few days, you will have a first sample for review according to the service choosed.
-
Our typical turnaround time for your project is as short as the time required to finish the project in professional manner.
OUTSOURCING BENEFITS

Outsourcing your drawings to Vertex Group, your organization can take complete advantage of time and human resources ending-up in additional business and more profit. We can roughly perform all of the important steps of any of the engineering services that we offer and will provide you reliable, high-quality, trustworthy results at cost-effective rates. If you’re looking for engineering services from a highly qualified company that puts clients first, then we believe that Vertex Group is your best option.